Informacje szczegółowe
DOLNOŚLĄSKIE, Oława 55-200
359,000.00 PLNOpis
Mieszkania - DOLNOŚLĄSKIE
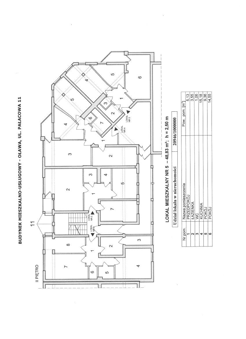
Mieszkanie ul. Pałacowa 11/5 (bezpośrednio nad Bankiem Spółdzielczym) do własnej aranżacji , bardzo jasne, słoneczne
2 osobne pokoje na 2 piętrze- widok na park
Powierzchnia użytkowa: 48,83 m2.
LOKALIZACJA
Bliskość rynku, sklepów, restauracji, banków, apteki, dworca autobusowego PKS, parku. W niedalekiej odległości: żłobek, przedszkole, szkoła podstawowa, szkoła średnia.
Idealna lokalizacja pod względem komunikacyjnym:
taxi, autobus podmiejski, PKS
NIERUCHOMOŚĆ
Blok wybudowany w 1995 roku, w zasobach Spółdzielni Mieszkaniowej `Jakub` w Oławie. Z okien od strony wschodniej widok na tereny zielone oraz na panoramę miasta.
pokój z balkonem 14,55 m2
pokój 9,36 m2
przedpokój 5,13 m2
łazianka 3,55 m2
WC 1,06 m2
kuchnia 15,18 m2
Do mieszkania przynależy komórka lokatorska 6,71 m2
Ogrzewanie gazowe.
Oferuję rzetelną i kompleksową obsługę całej transakcji.
Sprawdzę Państwa zdolność kredytową.
Załatwię wszelkie formalności niezbędne do uzyskania kredytu hipotecznego oraz do sprzedaży mieszkania.
Pośrednik nieruchomości (licencja nr 21954) oraz ekspert finansowy
Dorota Kopyta tel. 733 827 410
Oferta nr 4460896 wysłana z systemu LocumNet Online
- 2 pokoje
- Rok budowy 1995
- Powierzchnia użytkowa 48.83 m²
















